Sign up to get new listings emailed daily! JOIN SIGN IN
Staci Fox
REALTOR®
(540) 718-1799

Virginia , Culpeper, VA 22701

$2,250,000
  • Virginia , Culpeper, VA 22701 Main Photo

6 Total Photos [Click to View All]

New to the Market ACTIVE
MLS#VACU2012828
STATUSACTIVE PROPERTY TYPECommercial - SCHOOLCULPEPER COUNTY PUBLIC SCHOOLS

Property Description

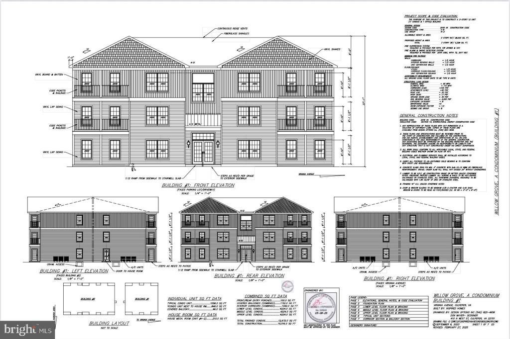
Looking to build a multi-family investment property in Culpeper, VA? Finding land zoned by right for multi-family development is nearly impossible these days and rezoning a property for that use is even more challenging. The approvals for this project have taken years to secure, and now Willow Grove is just weeks away from being fully shovel-ready. This project has full site plan approval from the Town of Culpeper to construct two buildings totaling 30 units, including a rentable management office. Owner has also obtained full building permit approval for the blueprints. The units are permitted under current codes to be converted into condominiums and sold individually. Additionally, the newly assigned RX zoning provides significant flexibility, including allowance for short-term rentals. While short-term rentals were prohibited in many zoning classifications during the Town of Culpeper’s recent zoning overhaul, they were not banned under this designation — a major advantage for Willow Grove. The only remaining entitlement is the utility plat and deed required by the Town. Surveyor and attorney are currently preparing the remaining minor edits for the third submission. All necessary utilities are already present and accessible on the property, including gravity-fed sewer, power and water. Comcast is readily available to supply internet as well. Located in an area with a near-zero rental vacancy rate, this presents a strong long-term investment opportunity. The Pro Forma included in the Realtor documents projects an estimated 7.01% cap rate for long-term rentals. Incorporating short-term rental units could potentially increase that return even further. Approved blueprints and all related documents are available upon request.

Virginia | MLS# VACU2012828

This commercial property located at Virginia , Culpeper, VA 22701 is currently listed for sale with an asking price of $2,250,000. Virginia is located within the CULPEPER COUNTY PUBLIC SCHOOLS school district. Search Culpeper real estate on sfox.montaguemiller.com today.

Property Features

Property Type: Commercial -
Cooling: None
Fuel Type: None
Heating: None
Lot Size: 2.45 Acres
Taxes: $2,554

Feature Descriptions

Exterior: Mixed
Lot Dimensions: 2.45 Acre(S)
Sewer: No Sewer System
Total Garage/Parking Spaces: 57
Water: None

Local Schools

School District: CULPEPER COUNTY PUBLIC SCHOOLS

Listed By / Shown By

Listed By

Agency Name: RE/MAX Gateway
Agency Phone: 5403411000

Shown By

Agent Name: Staci Fox
Agent Phone: (540) 718-1799
Agency Title: Montague Miller & Co. Realtors

IDX logo

Disclaimer: All information deemed reliable but not guaranteed. All properties are subject to prior sale, change or withdrawal. Neither listing broker(s) or information provider(s) shall be responsible for any typographical errors, misinformation, misprints and shall be held totally harmless. Listing(s) information is provided for consumers personal, non-commercial use and may not be used for any purpose other than to identify prospective properties consumers may be interested in purchasing. Information on this site was last updated 03/05/2026. The listing information on this page last changed on 03/05/2026. The data relating to real estate for sale on this website comes in part from the Internet Data Exchange program of Delta Media Group MLS (last updated Thu 03/05/2026 4:08:17 PM EST) or CAAR MLS (last updated Thu 03/05/2026 2:02:59 PM EST) or Staunton MLS (last updated Thu 03/05/2026 4:06:13 PM EST) or HRAR MLS (last updated Thu 03/05/2026 4:04:01 PM EST) or Lynchburg MLS (last updated Thu 03/05/2026 3:33:24 PM EST) or Rockbridge, Lexington, Buena Vista MLS (last updated Thu 03/05/2026 4:01:03 PM EST) or Bright MLS (last updated Thu 03/05/2026 4:02:34 PM EST). Real estate listings held by brokerage firms other than Montague Miller & Co. Realtors may be marked with the Internet Data Exchange logo and detailed information about those properties will include the name of the listing broker(s) when required by the MLS. All rights reserved.
Privacy Policy / DMCA Notice / ADA Accessibility

Agency License Information: Montague, Miller & Co. is licensed in the state of Virginia.


Login to My Homefinder

Pixel